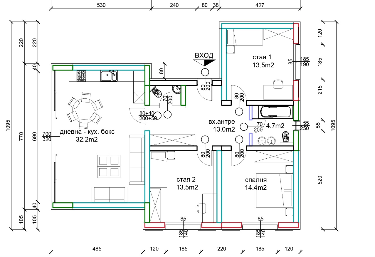
„БЮДЖЕТНИ КЪЩИ” Е ПРОЕКТ ЗА ИЗГРАЖДАНЕ НА ОБЕКТИ С ЯСНО ИЗРАЗЕНИ КРАЙНИ ЦЕНОВИ ПАРАМЕТРИ. КЪЩИТЕ СЕ ПРЕДОСТАВЯТ НАПЪЛНО ЗАВЪРШЕНИ И ГОТОВИ ЗА ПОЛЗВАНЕ. ВСИЧКИ ИЗБРОЕНИ ДЕТАЙЛИ СА ПРЕДВАРИТЕЛНО УГОВОРЕНИ И СЪОБРАЗЕНИ С ЖЕЛАНИЯТА НА БЪДЕЩИТЕ СОБСТВЕНИЦИ. ПРЕДЛАГАНИТЕ КЪЩИ СА В ДВА ВАРИАНТА, КАТО РАЗЛИКАТА Е В СТЕННИТЕ КОМПОНЕНТИ:
ВАРИАНТ 1:
НЯКОЛКО ВИДА СТЕННИ МОДУЛНИ КОМПОНЕНТА, ПРЕДВАРИТЕЛНО ПРЕДЛОЖЕНИ И ИЗБРАНИ ОТ КЛИЕНТА.
СРОКЪТ ЗА ИЗРАБОТВАНЕ, ДОСТАВКА И МОНТАЖ НА ТЕЗИ ОБЕКТИ Е ДВА МЕСЕЦА ОТ ПОДПИСВАНЕ НА ДОГОВОР ЗА ПОРЪЧКА ПРИ НАЛИЧНА ИЗРЯДНА ДОКУМЕНТАЦИЯ.
ВАРИАНТ 2:
СТАНДАРТНА КЪЩА С ТУХЛЕНИ СТЕНИ И ПО-ДЪЛЪГ СРОК ЗА ИЗПЪЛНЕНИЕ, СЪОБРАЗЕН С ЕТАПИТЕ НА СТРОИТЕЛНИЯ ПРОЦЕС:
I-ВИ ЕТАП - СТРОИТЕЛНА ПЛОЩАДКА – ФУНДАМЕНТ
II-РИ ЕТАП - ГРУБ СТРОЕЖ
III-ТИ ЕТАП - ДОВЪРШИТЕЛНИ ДЕЙНОСТИ
КРАЙНАТА ЦЕНА НА ПРОЕКТА „БЮДЖЕТНИ КЪЩИ” ВКЛЮЧВА:
- ПРОСЛЕДЯВАНЕ НА ВСИЧКИ ДЕЙНОСТИ И ПРОЦЕСИ
- КАЧЕСТВЕНИ МАТЕРИАЛИ НА НАЙ-ДОБРИ ЦЕНИ
- МАКСИМАЛНО КРАТЪК СРОК НА ИЗПЪЛНЕНИЕ СПОРЕД ОРГАНИЗАЦИЯ НА РАБОТА И ЕТАПНА ПОСЛЕДОВАТЕЛНОСТ НА СТРОИТЕЛНИТЕ ПРОЦЕСИ
- ПЕСТЕНЕ НА ВРЕМЕ И СРЕДСТВА ПО ПЪТУВАНИЯ И ПОСТОЯНЕН КОНТАКТ С ВСИЧКИ УЧАСТНИЦИ В ПРОЦЕСА
- ГАРАНЦИОНЕН СРОК НА ОБЕКТА
ПОДГОТВИТЕЛНИ ДЕЙНОСТИ
1 ПОДГОТОВКА ТЕРЕН
ИЗКОПНИ ДЕЙНОСТИ
1 ИЗКОП ФУНДАМЕНТИ КЪЩА
2 ИЗКОП ФУНДАМЕНТИ ВЕРАНДА
ФУНДАМЕНТИ И РАБАЛКИ
1 КОФРАЖ ФУНДАМЕНТИ
2 АРМИРОВКА ФУНДАМЕНТИ
3 НАПРАВА НА БЕТОН B25 ЗА ФУНДАМЕНТИ
4 КОФРАЖ РАНБАЛКИ
5 АРМИРОВКА РАНБАЛКИ
6 НАПРАВА НА БЕТОН B25 ЗА РАНБАЛКИ
НАСИПИ
1 НАПРАВА НА ОБРАТЕН НАСИП
СТОМАНО-БЕТОННА НАСТИЛКА
1 КОФРАЖ НА СТ. БЕТОН НАСТИЛКА
2 АРМИРОВКА СТ.Б. НАСТИЛКА
3 НАПРАВА НА БЕТОН B25 ЗА СТ.Б. НАСТИЛКА
НУЛЕВ ЦИКЪЛ
НАПРАВА НА СТЕНИ И ТАВАНИ
1 НАПРАВА НА ВЪНШНИ СТЕНИ
2 НАПРАВА НА ВЪТРЕШНИ СТЕНИ
3 НАПРАВА НА ТАВАНИ
ПОКРИВ
1 НАПРАВА НА ВЕНТИЛИРУЕМ ПОКРИВ С КЕРАМИЧНИ КЕРЕМИДИ
ГРУБ СТРОЕЖ
1 ДОГРАМА
2 ВРАТИ
3 ПОДОВЕ
4 ОБЛИЦОВКА ФАСАДА
5 ОБЛИЦОВКА И ОБОРУДВАНЕ БАНЯ
6 ШПАКЛОВКА И БОЯ СТЕНИ И ТАВАНИ
7 ДОСТАВКА И МОНТАЖ КАМИНА
8 ВИК
9 ЕЛ
10 ОБЛИЦОВКА ВЕРАНДА
11 НАПРАВА НА ПАРАПЕТИ
ДОВЪРШИТЕЛНИ ЕЛЕМЕНТИ...









